| Ort | Brotkorbstrasse, Stein AG |
|---|---|
| Auftraggeber | Stiftung Aargauische Sprachheilschulen ass |
| Nutzungen | 4 Schulzimmer, 5 Therapieräume, 2 Werkräume, 2 Gruppenräume, Tagesstrukturen, Speisesaal |
| Termine | Studienauftrag 2012, 1. Rang; Projektierung und Realisierung: 2013-2014, Bezug: Juli 2014 |
| Kenndaten | Arealgrösse 1'910 m2, GV: 1'655 m2 |
| Energielabel | Minergie-ECO |
| Team | Bauingenieur: Heyer Kaufmann Partner, Baden; Holzbauingenieur: Holzbaubüro Reusser, Winterthur; Elektroplanung: Hefti.Hess.Martignoni, Aarau; HLKS-Planung: Gruneko Schweiz AG, Basel |
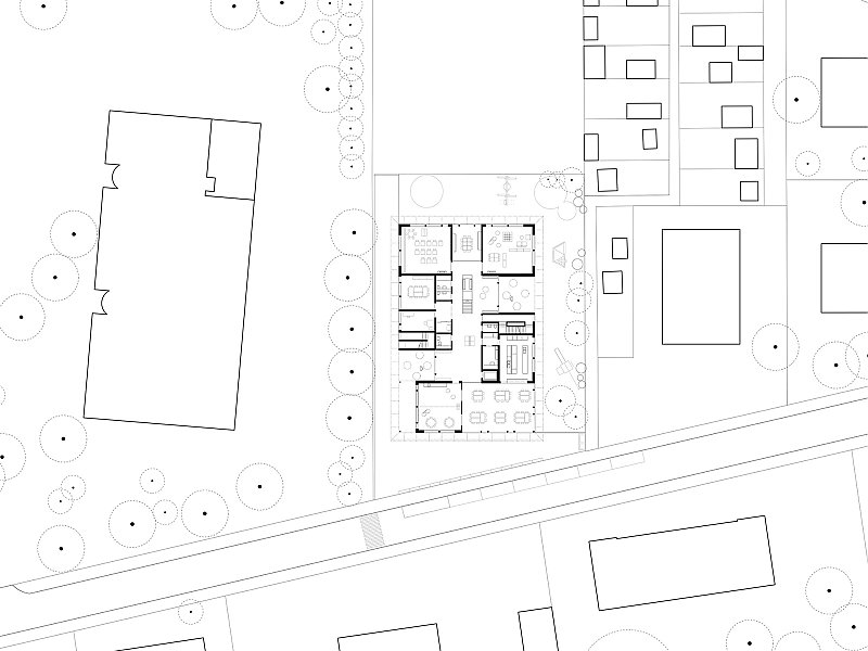
Der Bauplatz ist geprägt durch die Nachbarschaft von flächigen 2-geschossigen Schulbauten und punktförmigen 3-4-geschossigen Wohnbauten. Das Gebäude der Sprachheilschule bezieht sich in seiner Volumetrie auf die bestehenden Schulgebäude. Das Gebäude wurde in Holzelementbauweise auf einem UG aus Ortbeton erstellt. Anfang Januar 2014 wurde der Bau innert zehn Tagen aufgerichtet. Anschliessend erfolgte der Ausbau und die Fassade wurde montiert. Diese rasche Bauweise ergab, dass das Gebäude innerhalb eines knappen Jahres erstellt werden konnte und zum Schulanfang 2014 bereit stand. Der Aussenraum gliedert sich in einen befestigten Zugangsbereich und einen unterschiedlich nutzbaren Gartenbereich. Räumlich geprägt wird die Schule pro Geschoss durch vier Volumen, zwei Einschnitte und eine fliessend-verbindende frei nutzbare Fläche. In den Volumen befinden sich die ruhigeren Unterrichtsräume, die 2-geschossigen Einschnitte beinhalten die Eingangs- und die Spielhalle und der fliessende Raum entspricht der Erschliessungsfläche und den öffentlicheren Räumen. Die Entfluchtung des Obergeschosses geschieht über die vorgehängte Laube, welche das Gebäude auch architektonisch prägt. Alle Schul- und Therapiezimmer haben direkten Anstoss an die Laube – diese wird zur räumlichen Erweiterung der Unterrichtsräume. Durch die klare räumliche Organisation ist eine einfache Orientierung und eine vielfältige Bespielbarkeit im Schulhaus gesichert – das Schul-Haus wird zum Lern-Haus.