Hrachowina-Liegenschaften, Wien

 

 

OrtWien
AuftraggeberSiedlungs-Union m.b.H, Heimat Österreich m.b.H, Haring Group, Stadt Wien
NutzungWohnen 107'000 m2, Arbeiten, öffentliche und soziale Nutzungen 9'000 m2, Kindertagesheim: 1'000 m2 (ca. 2'200 BewohnerInnen und 500 Arbeitsplätze)
TermineInternationaler einstufiger Realisierungswettbewerb 2017, 2. Rang
KenndatenNutzflächen: ca. 117'000 m2
Arealgrösse: 71'400 m2
TeamARGE mit Thaler Thaler Architekten ZTKG, Wien
Landschaftsarchitektur: Land in Sicht, Wien

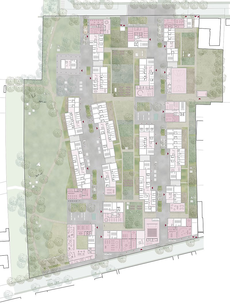
Auf der Basis einer detaillierten Orts- und Aufgabenanalyse wird als Ordnungs- und Regelprinzip eine „Felderstruktur“ entwickelt, welche auf dem – die räumliche Struktur von Kagran prägenden – franziszeischen Kataster basiert.

Diese Grundstruktur gliedert die Freiräume in unterschiedliche Typologien – den „Park“, den „Platz“, den „Anger“ –, schafft klare Erschliessungsräume – die „urbanen Gassen“ und spielt so attraktive Bauplätze in differenzierten Typologien frei – das „Stadthaus“, das „Siedlungshaus“, das „Punkthaus“. Die im Bebauungskonzept freigespielten Bauplätze können vielfältig und von unterschiedlichen Bauträgern und ArchitektInnen mit drei grundsätzlichen Gebäudetypen bebaut werden.

 

Der Park liegt als durchgehender öffentlicher Aussenraum an der Westseite des Areals und schafft so die Verbindung in Nord-Süd-Richtung. Die Siedlungsplätze sind mineralische Orte der Begegnung, welche im Zusammenspiel mit den höheren Punkthäusern Schwerpunkte und Nutzungskristallisationsorte im Quartiergefüge schaffen. Die Gassen sind gleichzeitig Erschliessungsräume und Begegnungsorte. Der Anger zwischen den Baubereichen ist ein quartieröffentlicher Grünraum. Die Stadthäuser bilden den Übergang zum langen Felde. Sie folgen den Baulinien, schaffen so einen klaren Strassenraum und sind gemischt genutzt und viergeschossig. Die Siedlungshäuser bilden die innere Bebauung des Quartiers. Sie bilden den Gassenraum, strukturieren diesen mit ihren Vor- und Rücksprüngen und sind als fünf- bis siebengeschossige Wohnbauten genutzt. Die Punkthäuser bilden zehngeschossige Merkpunkte im Quartiergefüge im Zusammenspiel mit den vorgelagerten Plätzen.

 

Mit dieser Vielfalt an Aussenräumen und Bebauungen und dem abgestimmten Verkehrskonzept wird ein unverwechselbares Quartier geschaffen, welches ebenso vielfältigen BewohnerInnen und Nutzungen Platz bietet.

 

 

Projekte entdecken