Bildungszentrum Limmattal, Dietikon

 

 

OrtSchöneggstrasse 12, 8953 Dietikon
AuftraggeberBaudirektion Hochbauamt Kanton Zürich
NutzungenBerufsschulhaus für Grundbildung und Weiterbildung in Logistik, Systemtechnik und Technologie
TerminePlanerwahlverfahren, 2021/22, 1. Rang
Vorprojekt 2022, Bauprojekt 2023, Realisierung 2025–2027
KenndatenGV 28'975 m3, GF 7'192 m2
EnergiestandardSNBS Silber, Minergie-ECO
TeamLandschaftsarchitektur: Müller Illien Landschaftsarchitekten, Zürich
Bauingenieur und Fassadenplaner: Dr. Lüchinger + Meyer Bauingenieure AG, Zürich
HLKS-Ingenieur: Hochstrasser Glaus & Partner Consulting AG, Zürich
Elektro-Ingenieur: Gode AG, Zürich
Sanitär-Ingenieur: Bösch Sanitäringenieure AG, Dietikon
Tür- und Sicherheitsplanung: Indora AG, Zürich
Bauphysik: Wichser Akustik & Bauphysik AG, Zürich
Brandschutzplanung: BS Konzept AG, Muhen

Das von Georges Künzler 1968–70 errichtete Gewerbeschulhaus gilt als wichtiger Zeitzeuge der späten Sechzigerjahre und befindet sich im Inventar der überkommunalen Schutzobjekte der kantonalen Denkmalpflege Zürich. Über einem differenziert ins Gelände eingepassten Sockelbau ragt ein viergeschossiger Kubus auf. Das Gebäude befindet sich weitgehend im Originalzustand.
Ziel des architektonischen Eingriffs ist es, aus einem zeitgemässen Schulhaus der 70er-Jahre nun wieder ein zeitgemässes Schulhaus der Gegenwart zu schaffen und das Gebäude nachhaltig für die nächsten 50 Jahre zu ertüchtigen. Dazu wurden zentrale Themen der architektonisch-planerischen Arbeit am Projekt formuliert:
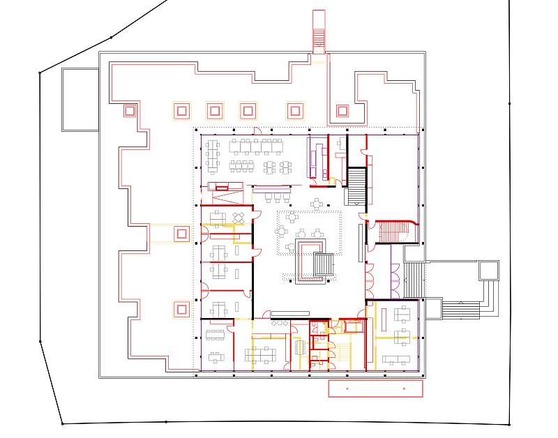
Brandschutz zur Schaffung didaktischer Freiheiten nutzen – Das Gebäude ist innenräumlich geprägt durch die zentrale Halle mit Treppenanlage. Diese wird dank des ausgearbeiteten Brandschutzkonzeptes gestärkt, frei bespielbar und zu einem Teil der Unterrichtswelt.
Eingriffe konzentrieren – Alle starken Eingriffe in die Struktur (Fluchttreppenhaus, Sanitärbereiche, etc.) werden konzentriert. Dies ermöglicht einen nachhaltigen und bewahrenden Umgang mit dem Bestand.
Fassaden respektvoll erneuern – Die Fassaden sind geprägt durch die Bänderung aus Betonfertigteilen und Aluminiumschiebefenstern. Die neuen Airlux-Schiebefenster werden in geschosshohen Elementen integriert, welche von innen mit minimalem Eingriff in den Bestand zwischen die bestehenden Stahlstützen gesetzt werden. Durch die Vorfertigung kann die Bauzeit optimiert und dem architektonischen Thema des Baus als Montagebau gerecht geworden werden.
Neue didaktische Konzepte ermöglichen – Auf den Geschossen werden Lernlandschaften etabliert, gegliedert durch vier Raumnischen. Diese bilden Platz für ruhigeres Lernen. Zur Halle bestehen die Nischen aus den bestehenden Wänden, senkrecht zu ihnen stehen Möbelstrukturen, welche Platz für Infrastruktur (z.B. Garderoben, Kopiernischen, Bibliothek, etc.) bieten. Die Erschliessung erfolgt entlang der Fassaden, so wird die Halle für Lernnutzungen freigespielt. Mobile Trennwände und Vorhänge gliedern die Flächen flexibel und Infrastrukturinseln (Dockingstations, Wasserspender, etc.) ermöglichen informellen Austausch.
So entsteht im Dialog mit der bestehenden Struktur ein zeitgemässes Schulhaus, welches neue didaktische Konzepte räumlich unterstützt.
 

 

 

 

 

Projekte entdecken