Kaserne, Aarau

 

 

OrtAarau
AuftraggeberStadt Aarau, Kanton Aargau
NutzungenWohnen, Bildung, Dienstleistung, Kultur und Gewerbe
TermineTestplanung 2017
KenndatenArealgrösse: ca. 50'000 m2; NF: 84’000 m2; Wohnen: 33’000 m2; Bildung: 11’000 m2; Dienstleistung/Kultur/Gewerbe: 40'000 m2
Energiestandard-
TeamLandschaftsarchitektur: Schneider Landschaftsarchitekten bsla AG, Olten; Verkehr: stadt raum verkehr, Birchler + Wicki, Zürich; Soziologie: HSLU Soziale Arbeit, Institut für Soziokulturelle Entwicklung

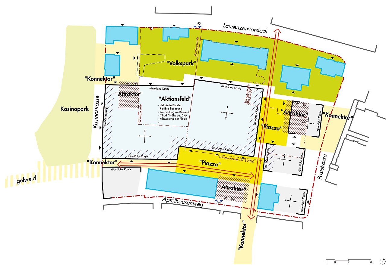
Das zentral gelegene Kasernenareal in Aarau hat verschiedene Interessens- und Zeithorizonte. Bis 2030 bleibt der zentrale Teil des Areals von der militärischen Nutzung besetzt und ist nicht öffentlich zugänglich. Die Flächen an den Rändern können jedoch ab 2018 unter Berücksichtigung der bestehenden Bauten und der Interessen der heutigen und zukünftigen Nutzer entwickelt werden. 

 

Ränder

Das Areal und seine Transformation wird von den Rändern her gedacht und entwickelt. An der Laurenzenvorstadt werden die geschützten, repräsentativen Gebäude wieder freigespielt und öffentlich gemacht.

 

Aktionsfeld

Das Areal ist ein vielfältig genutztes Stück Stadt. Gemäss dem Konzept entstehen verschiedene Schwerpunkte - das Kulturerlebnis im Süden, der Bildungsstandort im Osten und die Kulturproduktion im Norden. Das Aktionsfeld im Herzen des Areals bietet Raum für unterschiedlichste Stadt-Nutzungen.

 

Wegbeziehung

Das Kasernen-Areal war lange eine Barriere und besetzter Baustein in der Stadt. Mit der Öffnung und Transformation können frühere Wegebeziehungen zwischen Bahnhof, Altstadt und Aare für Fussgänger und Velofahrer wiederhergestellt werden.

 

Aussenräume

Drei verschiedene öffentliche Freiräume bilden klare Identitäten und Adressen. Der Volkspark umspielt die geschützten Bestandsbauten. Der Trompeterplatz spendet unter dem Baumdach Schatten und bietet Spiel- und Sitzflächen. Der Theaterplatz ist die Bühne für das abendliche Kulturpublikum. 

 

 

Projekte entdecken