Bezirksschulhaus Unterkulm

 

 

OrtHauptstrasse, Unterkulm
AuftraggeberEinwohnergemeinde Unterkulm
NutzungenSchulräume, Gruppenräume, Mehrzweckhalle, Turnhalle, Singsaal
TermineProjektwettbewerb 2001, 1. Rang; Projektierung und Realisierung 2001–2005
KenndatenGV: 18'350 m3; GF: 5'300 m2
TeamBauingenieure: Wilhelm + Wahlen Bauingenieure AG, Aarau; Holzbauingenieur: Makiol & Wiederkehr Dipl. Holzbau-Ingenieure HTL SISH, Beinwil am See; Elektroplanung: Hefti. Hess. Martignoni. Aarau AG, Aarau; HLKS-Planung: Boesch AG, Aarau; Landschaftsarchitekt: Hüsler + Hess AG, Luzern

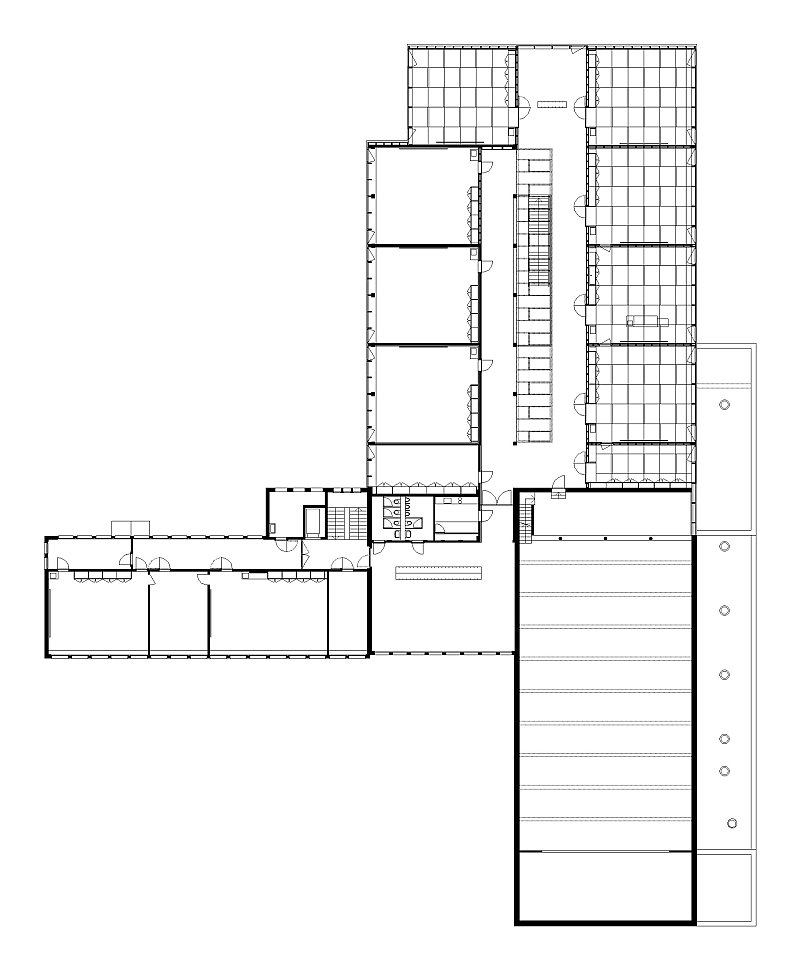
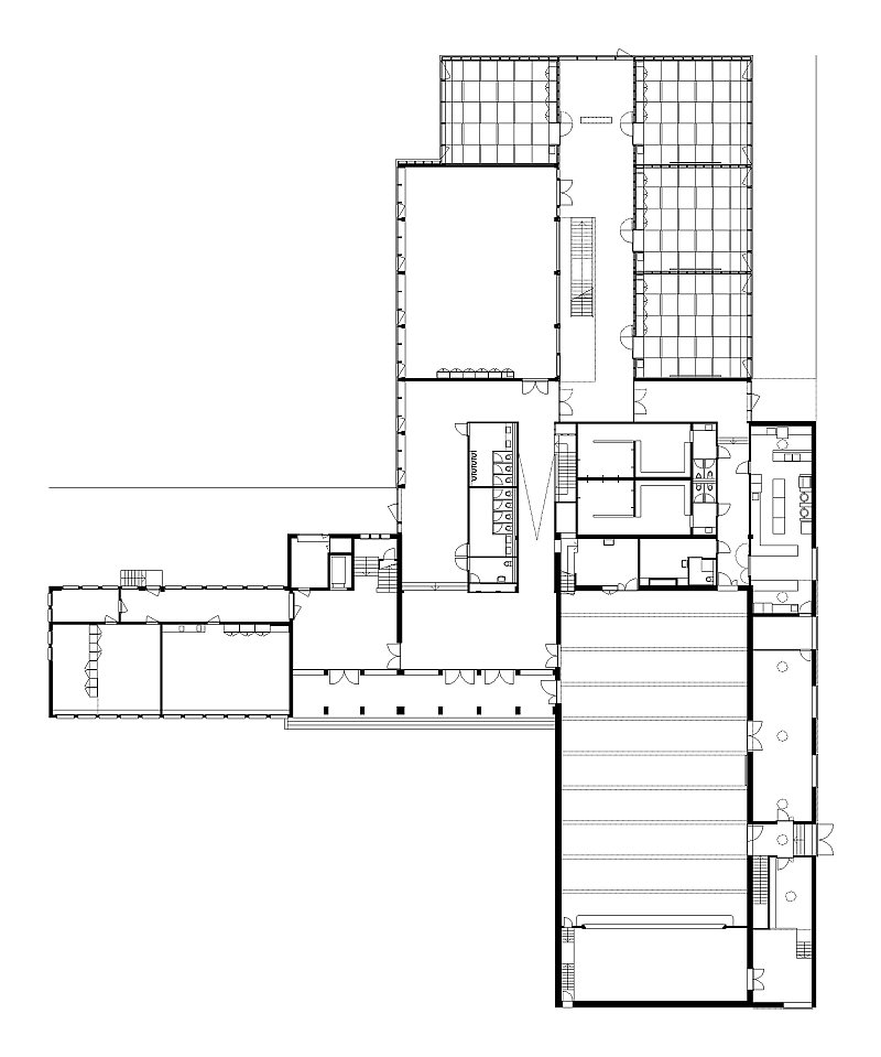
Die Schulanlage der Bezirksschule bestand vor der Erweiterung bereits aus drei Teilen: einem Schulhaus aus der Jahrhundertwende, einem zweiten mit Mehrzweckhalle aus den 30-er Jahren und einer Erweiterung aus den 70-er Jahren. Die Erweiterung führt diese Teile zusammen und bildet aus der Anlage ein erlebbares Ganzes mit eigener Identität. Dies geschieht mittels umbauen das heisst „einpacken“ und „auffüllen“ losgelöst von einer vordergründigen Objektqualität.

 

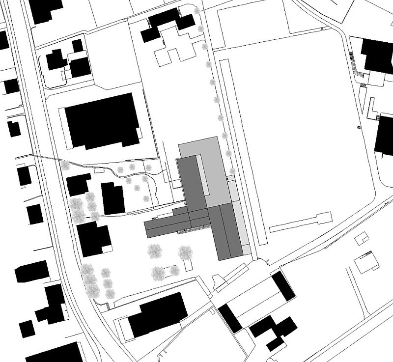
Die Fassade zur Sportanlage und zum Primarschulhaus war die Rückseite der Bezirksschule. Die neue Erweiterung wertet nun diese Fassade auf, indem die Schulzimmer sich der Sportwiese zuwenden. Es entsteht ein Gegenüber zur Primarschule mit einem gemeinsamen Sportplatz, die zusammen einen neuen Orientierungspunkt im Ort bilden.

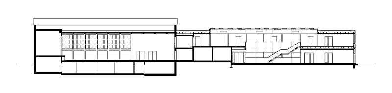
Die bestehende Struktur der Bebauung wird aufgenommen für eine klare Organisation der Nutzungen in drei Hauptgruppen: die Mehrzweckhalle im bestehenden Bau, die Spezialnutzungen in den bestehenden Schulhäusern, der Klassenbereich im Erweiterungsbau aus den 70-er Jahren und im Neubau. Ein grosszügiges Foyer trennt und verbindet gleichzeitig diese drei Nutzungen als vielfältig verwendbarer Verbindungsraum.

 

Der Neubauteil des Klassentraktes wurde als vorfabrizierter Holzelementbau ohne Untergeschoss ausgeführt. Dies ermöglichte eine kurze Bauzeit bei möglichst wenig Lärmimmissionen.

 

 

 

 

Projekte entdecken